












Apartament modern de tip boutique - CELESTIA HOMES
Estepona
390.000€
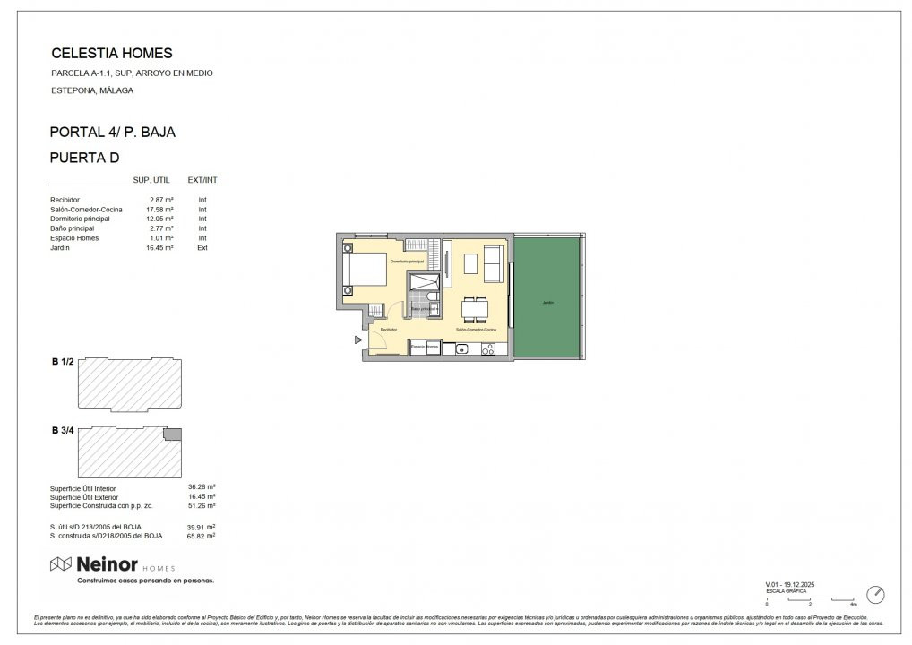
Suprafata construita
51.26 mp
Dormitoare
1
Etaj
Parter
An constructie
2027
- ID:P1038
- Nr. camere:2
- Nr. dormitoare:1
- Suprafata:36.28 mp
- Etaj:Parter
- Nr. bucatarii:1
- Nr. bai:1
- Nr. garaje:1
- An constructie:2027
- Orientare:Sud
Descriere
Un Nou Standard de Viață: Celestia Homes
Descoperă Celestia Homes, o dezvoltare exclusivă formată din 25 de reședințe contemporane situate într-una dintre cele mai dorite zone de expansiune din Estepona. Proiectată pentru cei care apreciază un amestec armonios de natură, modernitate și confort, această oportunitate unică te aduce mai aproape de stilul de viață mediteranean.
Caracteristici cheie:
Unități totale: 25
Unități disponibile: 12
Dormitoare: Configurații de 1, 2 și 3 dormitoare
Prețuri începând de la: 350.000€
Status: Proiect Off-plan
Locație de top: Estepona
Situată în regiunea vestică a orașului Estepona, Celestia Homes se bucură de o poziție ideală, la mică distanță de centrul orașului și de cartierul liniștit Arroyo Enmedio. Această zonă în plină dezvoltare a devenit una dintre cele mai dinamice și dorite pe Costa del Sol, oferind acces rapid la plajele liniștite din Arroyo Vaquero.
Estepona în sine este o bijuterie pe Costa del Sol, care îmbină perfect tradiția, natura și modernitatea. Centrul său vechi pitoresc, marina vibrantă și cei 20 de kilometri de plaje scaldate de soare creează un stil de viață mediteranean unic. Climatul blând pe tot parcursul anului, oferta culturală bogată și gastronomia excelentă fac din acest loc o destinație idilică pentru a locui sau pentru o escapadă de neuitat.
Facilități exterioare:
Proiectat pentru a satisface toate nevoile stilului tău de viață, Celestia Homes oferă spații exterioare atent create:
Grădini amenajate: Împrejmuiesc complexul cu vegetație luxuriantă, perfecte pentru plimbări, citit sau conectarea cu natura.
Piscină centrală: O piscină spațioasă situată în centrul complexului, ideală pentru relaxare sau pentru a te răcori în zilele însorite.
Sală de fitness complet echipată: Situată în apropierea piscinei, oferind facilități moderne pentru pasionații de fitness.
Interioare de calitate superioară:
Fiecare locuință din Celestia Homes combină luxul cu funcționalitatea, având spații generoase, luminate natural și cu priveliști uluitoare spre mare. Fiecare detaliu a fost proiectat cu grijă:
Pardoseli din ceramică de înaltă calitate: Plăci de mari dimensiuni care oferă eleganță, durabilitate și ușurință în întreținere.
Ferestre mari: Maximizează lumina naturală și evidențiază priveliștile panoramice ale Mediteranei.
Terase generoase și solarii: Perfecte pentru mese în aer liber, socializare sau pur și simplu pentru a te bucura de liniștea mediului înconjurător la apus.
Celestia Homes este mai mult decât o locuință; este un stil de viață definit de lux, liniște și o combinație perfectă între spațiile interioare și exterioare.
Contactați-ne astăzi pentru a afla mai multe despre această oportunitate extraordinară și pentru a vă asigura casa de vis în Estepona.
Citeste mai mult
Descoperă Celestia Homes, o dezvoltare exclusivă formată din 25 de reședințe contemporane situate într-una dintre cele mai dorite zone de expansiune din Estepona. Proiectată pentru cei care apreciază un amestec armonios de natură, modernitate și confort, această oportunitate unică te aduce mai aproape de stilul de viață mediteranean.
Caracteristici cheie:
Unități totale: 25
Unități disponibile: 12
Dormitoare: Configurații de 1, 2 și 3 dormitoare
Prețuri începând de la: 350.000€
Status: Proiect Off-plan
Locație de top: Estepona
Situată în regiunea vestică a orașului Estepona, Celestia Homes se bucură de o poziție ideală, la mică distanță de centrul orașului și de cartierul liniștit Arroyo Enmedio. Această zonă în plină dezvoltare a devenit una dintre cele mai dinamice și dorite pe Costa del Sol, oferind acces rapid la plajele liniștite din Arroyo Vaquero.
Estepona în sine este o bijuterie pe Costa del Sol, care îmbină perfect tradiția, natura și modernitatea. Centrul său vechi pitoresc, marina vibrantă și cei 20 de kilometri de plaje scaldate de soare creează un stil de viață mediteranean unic. Climatul blând pe tot parcursul anului, oferta culturală bogată și gastronomia excelentă fac din acest loc o destinație idilică pentru a locui sau pentru o escapadă de neuitat.
Facilități exterioare:
Proiectat pentru a satisface toate nevoile stilului tău de viață, Celestia Homes oferă spații exterioare atent create:
Grădini amenajate: Împrejmuiesc complexul cu vegetație luxuriantă, perfecte pentru plimbări, citit sau conectarea cu natura.
Piscină centrală: O piscină spațioasă situată în centrul complexului, ideală pentru relaxare sau pentru a te răcori în zilele însorite.
Sală de fitness complet echipată: Situată în apropierea piscinei, oferind facilități moderne pentru pasionații de fitness.
Interioare de calitate superioară:
Fiecare locuință din Celestia Homes combină luxul cu funcționalitatea, având spații generoase, luminate natural și cu priveliști uluitoare spre mare. Fiecare detaliu a fost proiectat cu grijă:
Pardoseli din ceramică de înaltă calitate: Plăci de mari dimensiuni care oferă eleganță, durabilitate și ușurință în întreținere.
Ferestre mari: Maximizează lumina naturală și evidențiază priveliștile panoramice ale Mediteranei.
Terase generoase și solarii: Perfecte pentru mese în aer liber, socializare sau pur și simplu pentru a te bucura de liniștea mediului înconjurător la apus.
Celestia Homes este mai mult decât o locuință; este un stil de viață definit de lux, liniște și o combinație perfectă între spațiile interioare și exterioare.
Contactați-ne astăzi pentru a afla mai multe despre această oportunitate extraordinară și pentru a vă asigura casa de vis în Estepona.
Tur virtual
Specificatii
Curent
Apa
Canalizare
CATV
Fibra optica
Sistem irigatie
Aer conditionat
Terasa
Boxa la subsol
Bucatarie Mobilata
Bucatarie Utilata
Nemobilat
Videointerfon
Spatii agrement
Curte comuna
Gradina
Piscina exterioara
Ovidiu Pasare
+34665054008
Esti interesat de aceasta proprietate ?