
















Apartament cu 1 dormitor in ALONIS LIVING, Playa Torres
Villajoyosa
346.000€
Suprafata construita
89.10 mp
Dormitoare
1
Etaj
Parter
An constructie
2027
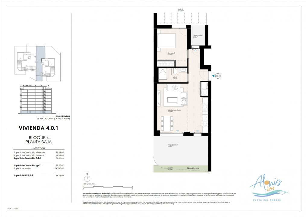
- ID:P727
- Nr. camere:2
- Nr. dormitoare:1
- Suprafata:68.53 mp
- S. terase:19.98 mp
- S. utila totala:88.51 mp
- Etaj:Parter
- Nr. bucatarii:1
- Nr. bai:1
- Nr. garaje:1
- An constructie:2027
- Clasa energetica:A
Descriere
Alonis Living, Playa Torres – Villajoyosa: Locul în care să fii
Descoperă visul
Alonis Living este o dezvoltare rezidențială excepțională, situată la doar 5 minute de mers pe jos de Playa del Torres, o plajă liniștită din Villajoyosa. Această comunitate exclusivistă oferă 164 de apartamente și penthouse-uri, cu 1 până la 3 dormitoare, proiectate cu grijă pentru a răspunde nevoilor moderne. Fie că sunteți un profesionist în căutarea unui cămin vibrant, o familie tânără care caută liniște, sau un cuplu gata să adopte stilul de viață mediteranean, Alonis Living oferă combinația perfectă între confort, stil și lux.
Locație de excepție
Situat în fermecătorul oraș costier Villajoyosa—votat „Cea mai bună destinație secretă din Europa” pentru 2024—Alonis Living combină tradiția cu modernitatea. Proximitatea la atracții iconice, precum Turnul lui Hercule, Casele Colorate și marina pitorească, îi conferă un farmec aparte. În plus, plajele nealterate ale orașului și istoria bogată a Mediteranei creează o experiență de locuit incomparabilă.
Excelență arhitecturală
Proiectul se remarcă printr-un design contemporan, inspirat de frumusețea naturală înconjurătoare. Cu interioare spațioase, scăldate în lumină naturală, forme organice și materiale premium, fiecare detaliu al Alonis Living sărbătorește stilul de viață mediteranean. Terasele și grădinile conectează perfect spațiile interioare și exterioare, oferind priveliști superbe și o retragere liniștită din cotidian.
Facilități și Caracteristici:
1. Spații de Locuit de Lux
Dormitoare: Spațioase, cu dulapuri încorporate, compartimente pentru bagaje și sertare.
Băi: Elegante și sustenabile, dotate cu toalete suspendate, încălzire prin pardoseală, tăvi de duș și finisaje ceramice de înaltă calitate.
Bucătării: Complet echipate cu electrocasnice premium (Bosch/Samsung), blaturi din Silestone și dulapuri elegante.
Zone de zi: Spații deschise, cu docuri USB integrate, concepute pentru a sublinia confortul și conectivitatea.
2. Zone Comune Fără Rival
Piscine: Trei opțiuni uimitoare—piscină tropicală cu nisip, piscină pentru copii și piscină încălzită pentru înot. De asemenea, o piscină infinity pe acoperiș, care oferă priveliști spectaculoase ale Mediteranei.
Facilități de fitness: Săli de sport interioare și exterioare, circuit de calistenie și mini-golf.
Zonă de relaxare pe acoperiș: Zone pentru grătar, spații multifuncționale și locuri confortabile pentru socializare și relaxare.
Lounge social: Cameră gourmet pentru evenimente private sau coworking.
Depozit pentru Paddle Surf: Spațiu dedicat pentru păstrarea echipamentului de paddle surf.
3. Locuințe Verzi și Inteligente
Eficiență Energetică: Dezvoltarea are certificare energetică A, cu izolație termică din lână de rocă, sisteme aerotermale pentru apă caldă și ferestre cu geamuri duble de înaltă eficiență.
Caracteristici Smart Home: Aplicația AlonisApp permite rezervarea spațiilor comune, gestionarea serviciilor de acasă și conectarea la atracțiile locale.
Pregătire pentru Vehicule Electrice: Puncte de încărcare preinstalate în garajele private.
Specificații de Calitate:
Fațadă Exterioară: Consolidată pentru durabilitate, cu izolație termică de 60 mm.
Pardoseli: Plăci ceramice antiderapante pentru terase și pardoseală SPC Linkfloor de la Porcelanosa pentru interioare, care îmbunătățește izolația acustică și armonia vizuală.
Aer Condiționat și Ventilație: Sistem de ventilație cu dublu flux, cu recuperare de căldură, și aer condiționat.
Siguranță și Confort: Uși securizate, interfoane video și lifturi independente care conectează toate etajele.
Spații Exterioare: Terase echipate cu prize electrice și ieșiri de apă pentru un plus de confort.
De ce să alegi Alonis Living?
Această dezvoltare nu este doar despre a deține o locuință—este despre a îmbrățișa un stil de viață. Alonis Living oferă un mediu imersiv pentru relaxare, recreere și socializare. De la dimineți liniștite pe plajă până la seri vibrante în lounge-ul de pe acoperiș, acesta este locul în care vei găsi echilibrul perfect.
Citeste mai mult
Descoperă visul
Alonis Living este o dezvoltare rezidențială excepțională, situată la doar 5 minute de mers pe jos de Playa del Torres, o plajă liniștită din Villajoyosa. Această comunitate exclusivistă oferă 164 de apartamente și penthouse-uri, cu 1 până la 3 dormitoare, proiectate cu grijă pentru a răspunde nevoilor moderne. Fie că sunteți un profesionist în căutarea unui cămin vibrant, o familie tânără care caută liniște, sau un cuplu gata să adopte stilul de viață mediteranean, Alonis Living oferă combinația perfectă între confort, stil și lux.
Locație de excepție
Situat în fermecătorul oraș costier Villajoyosa—votat „Cea mai bună destinație secretă din Europa” pentru 2024—Alonis Living combină tradiția cu modernitatea. Proximitatea la atracții iconice, precum Turnul lui Hercule, Casele Colorate și marina pitorească, îi conferă un farmec aparte. În plus, plajele nealterate ale orașului și istoria bogată a Mediteranei creează o experiență de locuit incomparabilă.
Excelență arhitecturală
Proiectul se remarcă printr-un design contemporan, inspirat de frumusețea naturală înconjurătoare. Cu interioare spațioase, scăldate în lumină naturală, forme organice și materiale premium, fiecare detaliu al Alonis Living sărbătorește stilul de viață mediteranean. Terasele și grădinile conectează perfect spațiile interioare și exterioare, oferind priveliști superbe și o retragere liniștită din cotidian.
Facilități și Caracteristici:
1. Spații de Locuit de Lux
Dormitoare: Spațioase, cu dulapuri încorporate, compartimente pentru bagaje și sertare.
Băi: Elegante și sustenabile, dotate cu toalete suspendate, încălzire prin pardoseală, tăvi de duș și finisaje ceramice de înaltă calitate.
Bucătării: Complet echipate cu electrocasnice premium (Bosch/Samsung), blaturi din Silestone și dulapuri elegante.
Zone de zi: Spații deschise, cu docuri USB integrate, concepute pentru a sublinia confortul și conectivitatea.
2. Zone Comune Fără Rival
Piscine: Trei opțiuni uimitoare—piscină tropicală cu nisip, piscină pentru copii și piscină încălzită pentru înot. De asemenea, o piscină infinity pe acoperiș, care oferă priveliști spectaculoase ale Mediteranei.
Facilități de fitness: Săli de sport interioare și exterioare, circuit de calistenie și mini-golf.
Zonă de relaxare pe acoperiș: Zone pentru grătar, spații multifuncționale și locuri confortabile pentru socializare și relaxare.
Lounge social: Cameră gourmet pentru evenimente private sau coworking.
Depozit pentru Paddle Surf: Spațiu dedicat pentru păstrarea echipamentului de paddle surf.
3. Locuințe Verzi și Inteligente
Eficiență Energetică: Dezvoltarea are certificare energetică A, cu izolație termică din lână de rocă, sisteme aerotermale pentru apă caldă și ferestre cu geamuri duble de înaltă eficiență.
Caracteristici Smart Home: Aplicația AlonisApp permite rezervarea spațiilor comune, gestionarea serviciilor de acasă și conectarea la atracțiile locale.
Pregătire pentru Vehicule Electrice: Puncte de încărcare preinstalate în garajele private.
Specificații de Calitate:
Fațadă Exterioară: Consolidată pentru durabilitate, cu izolație termică de 60 mm.
Pardoseli: Plăci ceramice antiderapante pentru terase și pardoseală SPC Linkfloor de la Porcelanosa pentru interioare, care îmbunătățește izolația acustică și armonia vizuală.
Aer Condiționat și Ventilație: Sistem de ventilație cu dublu flux, cu recuperare de căldură, și aer condiționat.
Siguranță și Confort: Uși securizate, interfoane video și lifturi independente care conectează toate etajele.
Spații Exterioare: Terase echipate cu prize electrice și ieșiri de apă pentru un plus de confort.
De ce să alegi Alonis Living?
Această dezvoltare nu este doar despre a deține o locuință—este despre a îmbrățișa un stil de viață. Alonis Living oferă un mediu imersiv pentru relaxare, recreere și socializare. De la dimineți liniștite pe plajă până la seri vibrante în lounge-ul de pe acoperiș, acesta este locul în care vei găsi echilibrul perfect.
Video
Specificatii
Curent
Apa
Canalizare
CATV
Fibra optica
Sistem irigatie
Aer conditionat
Terasa
Boxa la subsol
Bucatarie Mobilata
Bucatarie Utilata
Nemobilat
Videointerfon
Lift
Spatii agrement
Curte
Curte comuna
Gradina
Piscina exterioara
Ovidiu Pasare
+34665054008
Esti interesat de aceasta proprietate ?