









Apartament 2 dormitoare vedere la mare si la golf ETHERNA HOMES II, Valle Romano
Estepona
296.000€
Suprafata construita
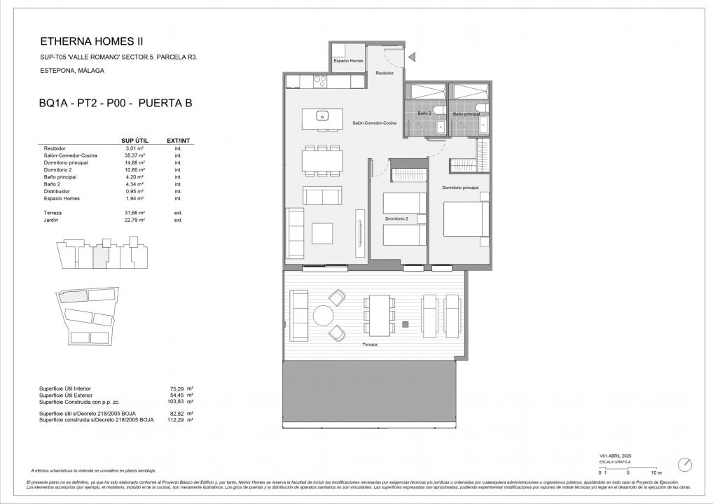
103.83 mp
Dormitoare
2
Etaj
Parter
An constructie
2028
- ID:P852
- Nr. camere:3
- Nr. dormitoare:2
- Suprafata:75.29 mp
- S. terase:31.66 mp
- S. utila totala:106.95 mp
- Etaj:Parter
- Nr. bucatarii:1
- Nr. bai:2
- Nr. garaje:1
- An constructie:2028
Descriere
Etherna Homes II – Un stil de viață plin de lumină, rafinament și liniște
📍 Estepona, Costa del Sol
Bine ați venit la Etherna Homes II, un nou reper al eleganței pe litoral, situat în dealurile pitorești din Valle Romano, la doar câteva minute de fermecătorul oraș Estepona și plajele sale aurii. Cu priveliști panoramice spectaculoase către Golful Estepona și terenul de golf Valle Romano, acest complex exclusivist îmbină arhitectura modernă cu dotări premium într-unul dintre cele mai râvnite colțuri ale Costei del Sol.
📐 Prezentare generală:
Etherna Homes II este un complex rezidențial închis, cu densitate redusă, format din 144 de apartamente moderne cu 1, 2 și 3 dormitoare, dispuse în șase clădiri elegante cu regim mic de înălțime. Toate locuințele sunt orientate spre sud, cu ferestre mari ce inundează spațiile interioare cu lumină naturală și se deschid către terase spațioase cu vedere la mare, teren de golf și zone verzi.
🌿 Facilități & Stil de viață:
🏊♂️ Piscină comunitară cu iluminare nocturnă decorativă, zonă verde și solariu.
🏋️ Sală de fitness complet echipată.
🍷 Sală Gourmet elegantă – ideală pentru socializare și evenimente private.
🌳 Grădini amenajate cu plante autohtone și sistem automat de irigare prin picurare.
🚪 Acces securizat cu punct de control (comun fazei I și II) pentru un plus de intimitate.
🚗 Loc de parcare subteran și boxă de depozitare incluse.
🛗 Lifturi accesibile de la toate etajele, inclusiv garaj.
🏡 Interior & Calitate construcție:
✅ Design modern și luminos, cu compartimentare fluidă.
🧱 Structură: Cadru din beton armat, acoperișuri plate inversate, izolație termică performantă.
🪟 Tâmplărie PVC cu geam dublu (tip Climalit), cameră de aer și rulouri în dormitoare și living.
Finisaje interioare:
🪵 Ușă de intrare blindată cu 3 puncte de închidere.
🚪 Uși interioare semisolide, albe, cu benzi fonice.
🧥 Dulapuri încastrate, complet echipate.
🧱 Pardoseală: gresie porțelanată, antiderapantă pe terase.
🎨 Pereți finisați cu vopsea lavabilă, tavane false în toată locuința.
🍽️ Bucătărie:
Mobilată complet, cu blaturi și faianță de cuarț compact.
Electrocasnice incluse:
Hota telescopică
Plită cu inducție
Cuptor & cuptor cu microunde (inox)
Mașină de spălat vase & frigider combinat (încorporabile)
Mașină de spălat rufe (liberă instalare)
Baterie cu debit redus și cap retractabil.
🛁 Băi:
Echipate cu cadă de duș din rășină, mobilier cu lavoar, toaletă și baterii monocomandă.
Oglindă și paravan disponibile opțional.
❄️ Confort & Eficiență:
❄️ Sistem de aer condiționat prin tubulatură cu termostat programabil.
🔥 Apă caldă produsă prin sistem aerotermic, cu sprijinul panourilor solare.
🔌 Priză USB și conexiuni TV și pe terase.
📹 Videointerfon color.
Etherna Homes este conceput pentru a depăși toate așteptările și dorințele dvs., oferind o experiență de locuit modernă și luxoasă într-una dintre cele mai frumoase zone din Spania. Bine ați venit în noua dvs. casă.
Citeste mai mult
📍 Estepona, Costa del Sol
Bine ați venit la Etherna Homes II, un nou reper al eleganței pe litoral, situat în dealurile pitorești din Valle Romano, la doar câteva minute de fermecătorul oraș Estepona și plajele sale aurii. Cu priveliști panoramice spectaculoase către Golful Estepona și terenul de golf Valle Romano, acest complex exclusivist îmbină arhitectura modernă cu dotări premium într-unul dintre cele mai râvnite colțuri ale Costei del Sol.
📐 Prezentare generală:
Etherna Homes II este un complex rezidențial închis, cu densitate redusă, format din 144 de apartamente moderne cu 1, 2 și 3 dormitoare, dispuse în șase clădiri elegante cu regim mic de înălțime. Toate locuințele sunt orientate spre sud, cu ferestre mari ce inundează spațiile interioare cu lumină naturală și se deschid către terase spațioase cu vedere la mare, teren de golf și zone verzi.
🌿 Facilități & Stil de viață:
🏊♂️ Piscină comunitară cu iluminare nocturnă decorativă, zonă verde și solariu.
🏋️ Sală de fitness complet echipată.
🍷 Sală Gourmet elegantă – ideală pentru socializare și evenimente private.
🌳 Grădini amenajate cu plante autohtone și sistem automat de irigare prin picurare.
🚪 Acces securizat cu punct de control (comun fazei I și II) pentru un plus de intimitate.
🚗 Loc de parcare subteran și boxă de depozitare incluse.
🛗 Lifturi accesibile de la toate etajele, inclusiv garaj.
🏡 Interior & Calitate construcție:
✅ Design modern și luminos, cu compartimentare fluidă.
🧱 Structură: Cadru din beton armat, acoperișuri plate inversate, izolație termică performantă.
🪟 Tâmplărie PVC cu geam dublu (tip Climalit), cameră de aer și rulouri în dormitoare și living.
Finisaje interioare:
🪵 Ușă de intrare blindată cu 3 puncte de închidere.
🚪 Uși interioare semisolide, albe, cu benzi fonice.
🧥 Dulapuri încastrate, complet echipate.
🧱 Pardoseală: gresie porțelanată, antiderapantă pe terase.
🎨 Pereți finisați cu vopsea lavabilă, tavane false în toată locuința.
🍽️ Bucătărie:
Mobilată complet, cu blaturi și faianță de cuarț compact.
Electrocasnice incluse:
Hota telescopică
Plită cu inducție
Cuptor & cuptor cu microunde (inox)
Mașină de spălat vase & frigider combinat (încorporabile)
Mașină de spălat rufe (liberă instalare)
Baterie cu debit redus și cap retractabil.
🛁 Băi:
Echipate cu cadă de duș din rășină, mobilier cu lavoar, toaletă și baterii monocomandă.
Oglindă și paravan disponibile opțional.
❄️ Confort & Eficiență:
❄️ Sistem de aer condiționat prin tubulatură cu termostat programabil.
🔥 Apă caldă produsă prin sistem aerotermic, cu sprijinul panourilor solare.
🔌 Priză USB și conexiuni TV și pe terase.
📹 Videointerfon color.
Etherna Homes este conceput pentru a depăși toate așteptările și dorințele dvs., oferind o experiență de locuit modernă și luxoasă într-una dintre cele mai frumoase zone din Spania. Bine ați venit în noua dvs. casă.
Tur virtual
Specificatii
Curent
Apa
Canalizare
Aer conditionat
Terasa
Boxa la subsol
Bucatarie Mobilata
Bucatarie Utilata
Nemobilat
Videointerfon
Lift
Spatii agrement
Curte comuna
Gradina
Piscina exterioara
Ovidiu Pasare
+34665054008
Esti interesat de aceasta proprietate ?