















Boutique Apartament in Bougainvillea Estepona la Doar 300m de Plajă
Estepona
499.000€
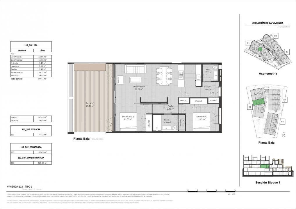
Suprafata construita
128.61 mp
Dormitoare
2
Etaj
Parter
An constructie
2027
- ID:P992
- Nr. camere:3
- Nr. dormitoare:2
- Suprafata:67.93 mp
- S. terase:29.48 mp
- S. utila totala:97.41 mp
- Etaj:Parter
- Nr. bucatarii:1
- Nr. bai:2
- Nr. garaje:1
- An constructie:2027
Descriere
Eleganță Mediteraneană, Confort Contemporan
Descoperă Bougainvillea Estepona, o comunitate exclusivistă cu doar 25 de reședințe premium situată pe New Golden Mile, la doar 300 de metri de mare. Proiectată de arhitecți renumiți, această dezvoltare îmbină farmecul andaluz cu confortul modern și eficiența energetică avansată.
Toate locuințele sunt orientate spre sud, cu vederi deschise către Marea Mediterană, terase generoase și finisaje de înaltă calitate – un ecosistem ideal pentru a trăi, relaxa și investi.
📍 Localizare Perfectă
300m până la plajă
5 min până în centru și portul din Estepona
10 min Puerto Banús | 15 min Marbella
40 min către aeroporturile Málaga & Gibraltar
În apropiere: terenuri de golf, cluburi ecvestre, restaurante, școli internaționale, porturi, cluburi de plajă.
✨ Puncte Forte
Apartament cu 2 dormitoare în complex boutique
Vedere la mare, multă lumină naturală
Terase ample & opțiune solariu privat
Pereți mobili pentru flexibilitate interioară
Pachete de finisaje Standard/Premium
Încălzire prin pardoseală în toată casa
Electrocasnice ASKO, sanitare Villeroy & Boch
Smart Home & climatizare avansată
Piscină cu apă sărată, spa privat, sală de fitness
Complex închis cu pază & control acces
Autorizație de construire: Da
Finalizare estimată: Trimestrul 2 – 2027
Start construcție: Trimestrul 1 – 2025
Specificații Tehnice:
Structură & Fundatii
Structură din beton armat cu stâlpi, grinzi și planșee reticulare
Construcție rezistentă la solicitări, conform normelor spaniole
Fațadă & Izolație
Fațadă ventilată cu piatră naturală
Cărămidă perforată 15cm + cameră de aer
Substructură metalică + izolație fonică & termică
Acoperiș
Acoperiș inversat termo-hidroizolat
Finisaje: piatră, deck sau acoperiș verde
Tâmplărie & Geamuri
Ferestre termo-fonice performante
Panouri glisante spre terasă
Cadre cu izolație injectată + închidere securizată
Compartimentări Interioare
Pereți despărțitori anti-zgomot
Structuri metalice + vată minerală + gips-carton
Uși & Dulapuri
Ușă principală blindată cu opțiune smart-lock
Dulapuri încorporate, finisaj lac mat
Pardoseli & Finisaje
Pardoseli din piatră naturală integral
Duș tip walk-in cu piatră naturală + sticlă securizată
Terase cu deck din lemn
Băi cu stucco de marmură albă
Climatizare & Apă Caldă
Sistem aerotermie pentru încălzire & ACM
Încălzire prin pardoseală în toată locuința
Aer condiționat ductat în plafon fals
Bucătărie & Băi
Electrocasnice premium ASKO
Obiecte sanitare Villeroy & Boch
Lavoar din piatră naturală & baterii premium
Smart Home & Tehnologie
Acces inteligent + prize Schneider
Automatizare climatică
Opțiune pentru sistem smart home complet
Detalii Arhitecturale
Pergole cu bougainvillea & obloane mediteraneene
Panouri din lemn ventilate pentru umbrire
Opțiuni
Jacuzzi pe terasă
Încărcător EV
Panouri fotovoltaice
Personalizare layout interior
Citeste mai mult
Descoperă Bougainvillea Estepona, o comunitate exclusivistă cu doar 25 de reședințe premium situată pe New Golden Mile, la doar 300 de metri de mare. Proiectată de arhitecți renumiți, această dezvoltare îmbină farmecul andaluz cu confortul modern și eficiența energetică avansată.
Toate locuințele sunt orientate spre sud, cu vederi deschise către Marea Mediterană, terase generoase și finisaje de înaltă calitate – un ecosistem ideal pentru a trăi, relaxa și investi.
📍 Localizare Perfectă
300m până la plajă
5 min până în centru și portul din Estepona
10 min Puerto Banús | 15 min Marbella
40 min către aeroporturile Málaga & Gibraltar
În apropiere: terenuri de golf, cluburi ecvestre, restaurante, școli internaționale, porturi, cluburi de plajă.
✨ Puncte Forte
Apartament cu 2 dormitoare în complex boutique
Vedere la mare, multă lumină naturală
Terase ample & opțiune solariu privat
Pereți mobili pentru flexibilitate interioară
Pachete de finisaje Standard/Premium
Încălzire prin pardoseală în toată casa
Electrocasnice ASKO, sanitare Villeroy & Boch
Smart Home & climatizare avansată
Piscină cu apă sărată, spa privat, sală de fitness
Complex închis cu pază & control acces
Autorizație de construire: Da
Finalizare estimată: Trimestrul 2 – 2027
Start construcție: Trimestrul 1 – 2025
Specificații Tehnice:
Structură & Fundatii
Structură din beton armat cu stâlpi, grinzi și planșee reticulare
Construcție rezistentă la solicitări, conform normelor spaniole
Fațadă & Izolație
Fațadă ventilată cu piatră naturală
Cărămidă perforată 15cm + cameră de aer
Substructură metalică + izolație fonică & termică
Acoperiș
Acoperiș inversat termo-hidroizolat
Finisaje: piatră, deck sau acoperiș verde
Tâmplărie & Geamuri
Ferestre termo-fonice performante
Panouri glisante spre terasă
Cadre cu izolație injectată + închidere securizată
Compartimentări Interioare
Pereți despărțitori anti-zgomot
Structuri metalice + vată minerală + gips-carton
Uși & Dulapuri
Ușă principală blindată cu opțiune smart-lock
Dulapuri încorporate, finisaj lac mat
Pardoseli & Finisaje
Pardoseli din piatră naturală integral
Duș tip walk-in cu piatră naturală + sticlă securizată
Terase cu deck din lemn
Băi cu stucco de marmură albă
Climatizare & Apă Caldă
Sistem aerotermie pentru încălzire & ACM
Încălzire prin pardoseală în toată locuința
Aer condiționat ductat în plafon fals
Bucătărie & Băi
Electrocasnice premium ASKO
Obiecte sanitare Villeroy & Boch
Lavoar din piatră naturală & baterii premium
Smart Home & Tehnologie
Acces inteligent + prize Schneider
Automatizare climatică
Opțiune pentru sistem smart home complet
Detalii Arhitecturale
Pergole cu bougainvillea & obloane mediteraneene
Panouri din lemn ventilate pentru umbrire
Opțiuni
Jacuzzi pe terasă
Încărcător EV
Panouri fotovoltaice
Personalizare layout interior
Specificatii
Curent
Apa
Canalizare
CATV
Fibra optica
Sistem irigatie
Incalzire pardoseala
Aer conditionat
Ferestre Termopan
Terasa
Boxa la subsol
Bucatarie Mobilata
Bucatarie Utilata
Nemobilat
Videointerfon
Spatii agrement
Curte comuna
Gradina
Piscina exterioara
Ovidiu Pasare
+34665054008
Esti interesat de aceasta proprietate ?