











Isidora Living Las Mesas - ansamblu rezidențial exclusivist în inima Esteponei
Estepona
545.000€
Suprafata construita
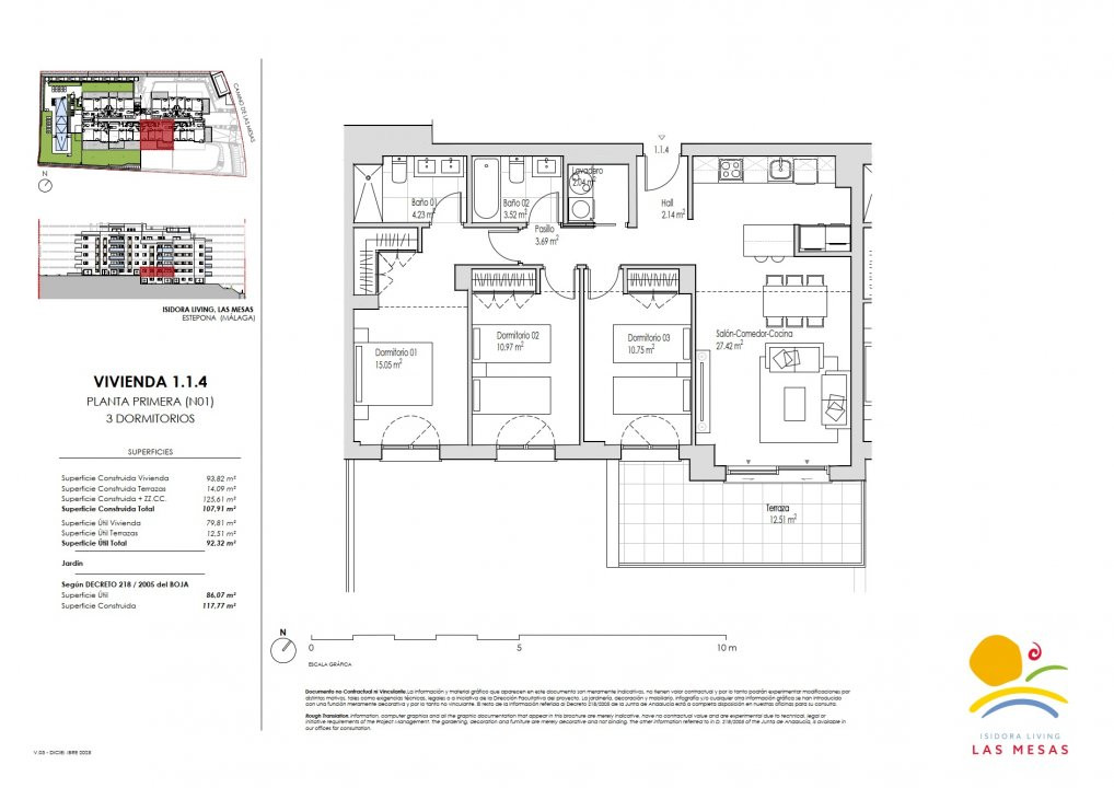
107.91 mp
Dormitoare
3
Etaj
Etaj 1
An constructie
2028
- ID:P1037
- Nr. camere:4
- Nr. dormitoare:3
- Suprafata:79.81 mp
- S. terase:12.51 mp
- S. utila totala:92.32 mp
- Etaj:Etaj 1
- Nr. bucatarii:1
- Nr. bai:2
- Nr. garaje:1
- An constructie:2028
Descriere
Stil de viață mediteranean contemporan în inima Esteponei
Prezentare Generală
Isidora Living Las Mesas este un ansamblu rezidențial exclusivist format din 43 de apartamente moderne cu 2 și 3 dormitoare, situat într-una dintre cele mai apreciate zone ale Costa del Sol – Estepona.
Proiectul a fost conceput pentru a oferi un echilibru perfect între arhitectură, lumină naturală și bunăstare, punând accent pe spații deschise, confort și un stil de viață relaxat, specific Mediteranei.
Localizare – Estepona, Costa del Sol
Supranumită „Grădina Costa del Sol”, Estepona îmbină farmecul autentic andaluz cu facilitățile unui oraș modern.
Poziționarea Isidora Living Las Mesas oferă:
Acces rapid la plajă ( 1 km de Playa de la Rada) și port (1.1 km)
Apropiere de centrul vechi ( 1 Km)
Multiple terenuri de golf de prestigiu
Conectivitate excelentă prin A-7 și AP-7
40-50 min de Aeroportul Málaga
35 min de Aeroportul Gibraltar
Un viitor centru cultural și de agrement, aflat la câteva minute de mers pe jos, va crește și mai mult atractivitatea zonei.
Concept & Arhitectură
Designul contemporan, cu linii curate și proporții echilibrate, este integrat armonios în peisaj. Fiecare locuință beneficiază de:
Orientare optimă
Lumină naturală abundentă
Intimitate și liniște
Continuitate între interior și exterior
Un proiect low-density, ideal pentru cei care caută calitate, nu aglomerație.
Caracteristici Principale
43 apartamente exclusiviste cu 2 și 3 dormitoare
Apartamente la parter cu grădină privată
Penthouse-uri spațioase (opțional mini-piscină)
Terase generoase
Living open-space
Bucătării italiene complet echipate
Parcare subterană + preinstalare stație EV
Boxe de depozitare
Zone Comune & Facilități
Complex rezidențial închis și securizat, cu facilități premium:
Piscină exterioară cu grădini amenajate
Sală de fitness complet echipată
Spa cu saună și hammam
Zonă multifuncțională / co-working
Terasă rooftop cu:
Jacuzzi încălzit
Zonă de relaxare
BBQ & dining exterior
Finisaje & Specificații Tehnice
Ferestre mari cu geam termopan
Izolație termică și fonică superioară
Pardoseli SPC sau laminat (alegere finisaj)
Dulapuri încorporate complet echipate
Băi moderne cu mobilier suspendat
Aer condiționat cu distribuție prin tubulatură
Apă caldă menajeră prin sistem aerotermic
Bucătării
Bucătării italiene complet mobilate, cu electrocasnice Bosch sau similar și blaturi din porțelan – durabile, elegante și ușor de întreținut.
Tehnologie & Personalizare
Isidora App – gestionare proprietate & facilități
Program Bespoke pentru personalizare:
Finisaje alternative
Încălzire în pardoseală
Mini-piscină
Stație de încărcare auto electric
Isidora Living Las Mesas este alegerea ideală pentru cei care caută:
Reședință permanentă
Casă de vacanță
Investiție sigură pe Costa del Sol
Un proiect care oferă echilibru, valoare și calitate a vieții, într-una dintre cele mai stabile piețe imobiliare din Spania.
Citeste mai mult
Prezentare Generală
Isidora Living Las Mesas este un ansamblu rezidențial exclusivist format din 43 de apartamente moderne cu 2 și 3 dormitoare, situat într-una dintre cele mai apreciate zone ale Costa del Sol – Estepona.
Proiectul a fost conceput pentru a oferi un echilibru perfect între arhitectură, lumină naturală și bunăstare, punând accent pe spații deschise, confort și un stil de viață relaxat, specific Mediteranei.
Localizare – Estepona, Costa del Sol
Supranumită „Grădina Costa del Sol”, Estepona îmbină farmecul autentic andaluz cu facilitățile unui oraș modern.
Poziționarea Isidora Living Las Mesas oferă:
Acces rapid la plajă ( 1 km de Playa de la Rada) și port (1.1 km)
Apropiere de centrul vechi ( 1 Km)
Multiple terenuri de golf de prestigiu
Conectivitate excelentă prin A-7 și AP-7
40-50 min de Aeroportul Málaga
35 min de Aeroportul Gibraltar
Un viitor centru cultural și de agrement, aflat la câteva minute de mers pe jos, va crește și mai mult atractivitatea zonei.
Concept & Arhitectură
Designul contemporan, cu linii curate și proporții echilibrate, este integrat armonios în peisaj. Fiecare locuință beneficiază de:
Orientare optimă
Lumină naturală abundentă
Intimitate și liniște
Continuitate între interior și exterior
Un proiect low-density, ideal pentru cei care caută calitate, nu aglomerație.
Caracteristici Principale
43 apartamente exclusiviste cu 2 și 3 dormitoare
Apartamente la parter cu grădină privată
Penthouse-uri spațioase (opțional mini-piscină)
Terase generoase
Living open-space
Bucătării italiene complet echipate
Parcare subterană + preinstalare stație EV
Boxe de depozitare
Zone Comune & Facilități
Complex rezidențial închis și securizat, cu facilități premium:
Piscină exterioară cu grădini amenajate
Sală de fitness complet echipată
Spa cu saună și hammam
Zonă multifuncțională / co-working
Terasă rooftop cu:
Jacuzzi încălzit
Zonă de relaxare
BBQ & dining exterior
Finisaje & Specificații Tehnice
Ferestre mari cu geam termopan
Izolație termică și fonică superioară
Pardoseli SPC sau laminat (alegere finisaj)
Dulapuri încorporate complet echipate
Băi moderne cu mobilier suspendat
Aer condiționat cu distribuție prin tubulatură
Apă caldă menajeră prin sistem aerotermic
Bucătării
Bucătării italiene complet mobilate, cu electrocasnice Bosch sau similar și blaturi din porțelan – durabile, elegante și ușor de întreținut.
Tehnologie & Personalizare
Isidora App – gestionare proprietate & facilități
Program Bespoke pentru personalizare:
Finisaje alternative
Încălzire în pardoseală
Mini-piscină
Stație de încărcare auto electric
Isidora Living Las Mesas este alegerea ideală pentru cei care caută:
Reședință permanentă
Casă de vacanță
Investiție sigură pe Costa del Sol
Un proiect care oferă echilibru, valoare și calitate a vieții, într-una dintre cele mai stabile piețe imobiliare din Spania.
Specificatii
Curent
Apa
Canalizare
CATV
Fibra optica
Sistem irigatie
Aer conditionat
Ferestre Termopan
Terasa
Boxa la subsol
Bucatarie Mobilata
Bucatarie Utilata
Nemobilat
Interfon
Lift
Spatii agrement
Curte comuna
Gradina
Piscina exterioara
Ovidiu Pasare
+34665054008
Esti interesat de aceasta proprietate ?