





















PUIG CAMPANA VILLAS – Eleganță contemporană între mare și munte
Finestrat
599.000€
Suprafata construita
343 mp
Dormitoare
3
An constructie
2026
- ID:P1062
- Nr. camere:5
- Nr. dormitoare:3
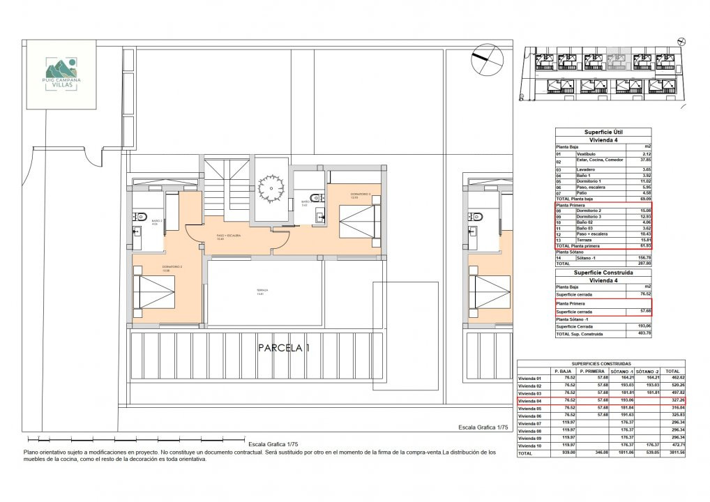
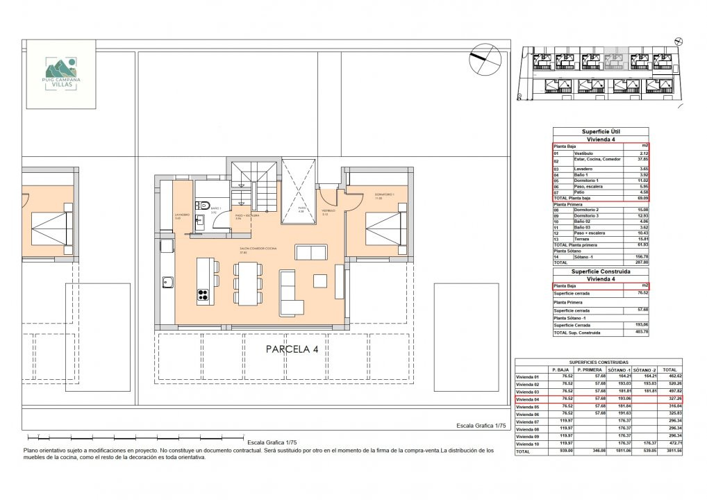
- Suprafata:287.80 mp
- S. terase:15.81 mp
- S. utila totala:303.61 mp
- S. teren:287.99 mp
- Nr. bucatarii:1
- Nr. bai:3
- Nr. parcari:2
- An constructie:2026
Descriere
Descoperiți un proiect boutique format din doar 10 vile moderne, situate într-un cadru natural spectaculos, cu vedere deschisă către mare și munte, la poalele impunătorului Puig Campana.
Puig Campana Villas îmbină arhitectura contemporană, tehnologiile moderne de construcție și stilul de viață mediteranean într-un concept rezidențial exclusivist pe Costa Blanca.
Localizare – Natură, priveliști și acces rapid
Complexul este amplasat într-o zonă rezidențială elevată, liniștită, înconjurată de natură și dezvoltări similare premium, oferind panorame spectaculoase către Marea Mediterană.
Acces rapid către:
Finestrat – la doar câteva minute
Benidorm și plajele sale – 10 minute
Centre comerciale și autostrada A7
Villajoyosa
Alicante și aeroportul internațional – aprox. 30 minute
Pentru pasionații de golf, vilele se află lângă Puig Campana Golf.
Conceptul proiectului
Proiectul este dezvoltat în două faze și oferă două tipologii de vile:
1 sau 2 niveluri
3 dormitoare duble
2 sau 3 băi complete
Living generos cu bucătărie open-space
Spălătorie separată
Terase ample și grădină privată
Piscină proprie
Parcare exterioară
1 sau 2 subsoluri multifuncționale
Anumite modele cu garaj subteran închis
Designul este conceput pentru a maximiza lumina naturală și continuitatea vizuală, datorită suprafețelor vitrate mari și balustradelor din sticlă.
Puncte Forte
Doar 10 vile independente
Vedere panoramică către mare și munte
Arhitectură modernă minimalistă
Piscină privată iluminată
Subsol personalizabil
Preinstalare pentru stație de încărcare auto electric
Instalație electrică 9,2 kW
Aer condiționat prin conducte inclus
Sistem de apă caldă cu pompă de căldură + panouri solare
Construcție eficientă energetic conform normativelor spaniole
Specificații de Calitate – Construit pentru confort pe termen lung
Puig Campana Villas este realizat utilizând materiale performante și sisteme moderne de construcție care asigură durabilitate, izolare și eficiență energetică.
Structură & Izolație
Fundații și structură din beton armat
Fațadă cu zid dublu ceramic și izolație termo-acustică
Izolație termică XPS la nivelul acoperișului
Sisteme de impermeabilizare și drenaj în zona subsolului
Sistem complet de împământare pentru siguranță electrică
Finisaje Exterioare
Fațadă albă monocapă hidrofugă cu accente din piatră naturală
Gresie porțelanată antiderapantă pe terase
Pergolă din lemn laminat pe terasa superioară (modele selectate)
Piscină privată din beton armat tip gunite cu finisaj gresite
Duș exterior din inox
Zone verzi amenajate
Tâmplărie & Vitraje
Ușă de intrare blindată cu balamale anti-efracție
Tâmplărie exterioară din aluminiu cu rupere de punte termică (antracit)
Geam dublu cu sticlă izolatoare low-emissivity (tip Climalit)
Sticlă securizată în zonele de risc
Jaluzele termice din aluminiu motorizate în dormitoare
Uși interioare și dulapuri lăcuite alb
Dulapuri tip dressing complet echipate
Pardoseli & Finisaje Interioare
Pardoseală porțelanată premium în întreaga locuință
Placări porțelanate în băi
Vopsea lavabilă finisaj neted
Scară din oțel lăcuit negru cu balustradă din sticlă (modele cu etaj)
Bucătărie
Design minimalist alb
Insulă centrală
Blat și contrablat din porțelan laminat
Coloană integrată pentru frigider și microunde
Complet echipată cu electrocasnice
Zonă separată pentru spălătorie
Băi
Obiecte sanitare Roca „Gap”
Baterii cromate monocomandă
Dușuri walk-in cu paravan din sticlă securizată
Mobilier de baie inclus
Climă & Energie
Climatizare prin conducte (unități incluse)
Sistem pompă de căldură 100L (Junkers sau similar)
Suport panouri solare pe acoperiș
Structură pregătită pentru personalizări suplimentare
Subsol
Structură din beton armat
Ușă automată de garaj cu telecomandă
Spații multifuncționale personalizabile
Preinstalare pentru iluminat, date și stație EV
Termene & Oportunitate
Începere construcție: Septembrie 2024
Primele livrări: T2 2026
Puig Campana Villas reprezintă combinația ideală între investiție sigură, confort modern și stil de viață mediteranean autentic.
Citeste mai mult
Puig Campana Villas îmbină arhitectura contemporană, tehnologiile moderne de construcție și stilul de viață mediteranean într-un concept rezidențial exclusivist pe Costa Blanca.
Localizare – Natură, priveliști și acces rapid
Complexul este amplasat într-o zonă rezidențială elevată, liniștită, înconjurată de natură și dezvoltări similare premium, oferind panorame spectaculoase către Marea Mediterană.
Acces rapid către:
Finestrat – la doar câteva minute
Benidorm și plajele sale – 10 minute
Centre comerciale și autostrada A7
Villajoyosa
Alicante și aeroportul internațional – aprox. 30 minute
Pentru pasionații de golf, vilele se află lângă Puig Campana Golf.
Conceptul proiectului
Proiectul este dezvoltat în două faze și oferă două tipologii de vile:
1 sau 2 niveluri
3 dormitoare duble
2 sau 3 băi complete
Living generos cu bucătărie open-space
Spălătorie separată
Terase ample și grădină privată
Piscină proprie
Parcare exterioară
1 sau 2 subsoluri multifuncționale
Anumite modele cu garaj subteran închis
Designul este conceput pentru a maximiza lumina naturală și continuitatea vizuală, datorită suprafețelor vitrate mari și balustradelor din sticlă.
Puncte Forte
Doar 10 vile independente
Vedere panoramică către mare și munte
Arhitectură modernă minimalistă
Piscină privată iluminată
Subsol personalizabil
Preinstalare pentru stație de încărcare auto electric
Instalație electrică 9,2 kW
Aer condiționat prin conducte inclus
Sistem de apă caldă cu pompă de căldură + panouri solare
Construcție eficientă energetic conform normativelor spaniole
Specificații de Calitate – Construit pentru confort pe termen lung
Puig Campana Villas este realizat utilizând materiale performante și sisteme moderne de construcție care asigură durabilitate, izolare și eficiență energetică.
Structură & Izolație
Fundații și structură din beton armat
Fațadă cu zid dublu ceramic și izolație termo-acustică
Izolație termică XPS la nivelul acoperișului
Sisteme de impermeabilizare și drenaj în zona subsolului
Sistem complet de împământare pentru siguranță electrică
Finisaje Exterioare
Fațadă albă monocapă hidrofugă cu accente din piatră naturală
Gresie porțelanată antiderapantă pe terase
Pergolă din lemn laminat pe terasa superioară (modele selectate)
Piscină privată din beton armat tip gunite cu finisaj gresite
Duș exterior din inox
Zone verzi amenajate
Tâmplărie & Vitraje
Ușă de intrare blindată cu balamale anti-efracție
Tâmplărie exterioară din aluminiu cu rupere de punte termică (antracit)
Geam dublu cu sticlă izolatoare low-emissivity (tip Climalit)
Sticlă securizată în zonele de risc
Jaluzele termice din aluminiu motorizate în dormitoare
Uși interioare și dulapuri lăcuite alb
Dulapuri tip dressing complet echipate
Pardoseli & Finisaje Interioare
Pardoseală porțelanată premium în întreaga locuință
Placări porțelanate în băi
Vopsea lavabilă finisaj neted
Scară din oțel lăcuit negru cu balustradă din sticlă (modele cu etaj)
Bucătărie
Design minimalist alb
Insulă centrală
Blat și contrablat din porțelan laminat
Coloană integrată pentru frigider și microunde
Complet echipată cu electrocasnice
Zonă separată pentru spălătorie
Băi
Obiecte sanitare Roca „Gap”
Baterii cromate monocomandă
Dușuri walk-in cu paravan din sticlă securizată
Mobilier de baie inclus
Climă & Energie
Climatizare prin conducte (unități incluse)
Sistem pompă de căldură 100L (Junkers sau similar)
Suport panouri solare pe acoperiș
Structură pregătită pentru personalizări suplimentare
Subsol
Structură din beton armat
Ușă automată de garaj cu telecomandă
Spații multifuncționale personalizabile
Preinstalare pentru iluminat, date și stație EV
Termene & Oportunitate
Începere construcție: Septembrie 2024
Primele livrări: T2 2026
Puig Campana Villas reprezintă combinația ideală între investiție sigură, confort modern și stil de viață mediteranean autentic.
Specificatii
Curent
Apa
Canalizare
CATV
Fibra optica
Aer conditionat
Ferestre Termopan
Bucatarie Mobilata
Bucatarie Utilata
Nemobilat
Interfon
Curte
Gradina
Piscina exterioara
Ovidiu Pasare
+34665054008
Esti interesat de aceasta proprietate ?