









Vila AURA in RESIDENCIAL GREEN & BLUE – Armonie Mediteraneană
Finestrat
610.000€
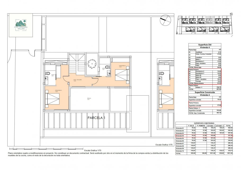
Suprafata construita
127.18 mp
Dormitoare
3
- ID:P1063
- Nr. camere:5
- Nr. dormitoare:3
- Suprafata:100.92 mp
- S. terase:86.58 mp
- S. utila totala:187.50 mp
- S. teren:367.83 mp
- Nr. bucatarii:1
- Nr. bai:4
Descriere
O oază privată în Finestrat, unde natura, designul și confortul se îmbină perfect.
Vă prezentăm Green & Blue, un nou proiect rezidențial exclusiv în Finestrat, una dintre cele mai apreciate zone rezidențiale de pe Costa Blanca. Aici, liniștea muntelui se întâlnește cu energia mării, oferind un stil de viață definit de lumină, spațiu și echilibru.
Predarea cheilor este estimată pentru trimestrul IV 2026.
Locație – Balcón de Finestrat, eleganță și priveliști panoramice
Situat în zona Balcón de Finestrat – Terra Marina, proiectul oferă vedere deschisă, climat mediteranean pe tot parcursul anului și acces rapid către Benidorm, aflat la mai puțin de 10 minute.
Beneficiați de:
Plaje spectaculoase
Terenuri de golf renumite
Centre comerciale și servicii complete
Parcuri tematice și activități de agrement
Conexiuni rapide către aeroporturile Alicante și Valencia
Finestrat impresionează prin centrul său vechi pitoresc, așezat pe versant, și prin combinația dintre tradiție și infrastructură modernă.
Descrierea Proprietății
Fiecare vilă dispune de 213 mp construiți pe două niveluri, cu o compartimentare modernă și funcțională.
Compartimentare interioară
3 dormitoare spațioase și 3 băi complete
Living open-space cu bucătărie integrată și ferestre ample până în tavan
Dormitor la parter – ideal pentru oaspeți sau birou
Dormitor matrimonial cu:
Baie proprie
Dressing generos
Terasă privată de aproape 30 mp cu vedere către mare
Zona de zi se deschide natural către terasă și grădină, oferind o continuitate perfectă între interior și exterior.
Spații exterioare – Bucurați-vă de stilul de viață mediteranean
Parcelă de până la 460 mp
Grădină amenajată și zone pavate
Terasă generoasă
Solarium panoramic pe acoperiș — ideal pentru relaxare, zonă lounge sau momente memorabile cu priveliște către mare și munte
Puncte de apă și electricitate în grădină
Un spațiu creat pentru a trăi în aer liber aproape tot anul.
Specificații Tehnice & Calitate
Structură și fațadă
Structură din beton armat cu rezistență seismică
Fațadă cu mortar monocapă alb și placare cu piatră naturală
Finisaje interioare cu vopsea lavabilă de înaltă calitate
Tâmplărie
Uși interioare albe, înălțime 2,5 m
Dulapuri încorporate complet finisate
Tâmplărie exterioară aluminiu negru cu rupere punte termică
Geam dublu tip Climalit
Jaluzele electrice în dormitoare
Ușă principală de securitate
Bucătărie & băi
Bucătărie modernă cu insulă și blat din cuarț
Mobilier complet inclus
Paravane de duș instalate
Obiecte sanitare suspendate (Roca sau similar)
Baterii moderne (Ramón Soler sau similar)
Instalații & eficiență energetică
Grad ridicat de electrificare
Încălzire prin pardoseală electrică în toată locuința
Iluminat LED
Videointerfon
Prize TV și telefon în toate camerele
Sisteme eficiente de contribuție energetică
De ce Green & Blue?
✔ Design contemporan
✔ Loturi generoase și intimitate
✔ Calitate premium a construcției
✔ Apropiere de mare și facilități
✔ Investiție solidă într-un stil de viață mediteranean autentic
Aceasta nu este doar o vilă. Este un stil de viață.
Trăiți Mediterana așa cum ați visat mereu.
Contactați echipa CaseSpania pentru disponibilitate actualizată, planuri și o prezentare personalizată.
Citeste mai mult
Vă prezentăm Green & Blue, un nou proiect rezidențial exclusiv în Finestrat, una dintre cele mai apreciate zone rezidențiale de pe Costa Blanca. Aici, liniștea muntelui se întâlnește cu energia mării, oferind un stil de viață definit de lumină, spațiu și echilibru.
Predarea cheilor este estimată pentru trimestrul IV 2026.
Locație – Balcón de Finestrat, eleganță și priveliști panoramice
Situat în zona Balcón de Finestrat – Terra Marina, proiectul oferă vedere deschisă, climat mediteranean pe tot parcursul anului și acces rapid către Benidorm, aflat la mai puțin de 10 minute.
Beneficiați de:
Plaje spectaculoase
Terenuri de golf renumite
Centre comerciale și servicii complete
Parcuri tematice și activități de agrement
Conexiuni rapide către aeroporturile Alicante și Valencia
Finestrat impresionează prin centrul său vechi pitoresc, așezat pe versant, și prin combinația dintre tradiție și infrastructură modernă.
Descrierea Proprietății
Fiecare vilă dispune de 213 mp construiți pe două niveluri, cu o compartimentare modernă și funcțională.
Compartimentare interioară
3 dormitoare spațioase și 3 băi complete
Living open-space cu bucătărie integrată și ferestre ample până în tavan
Dormitor la parter – ideal pentru oaspeți sau birou
Dormitor matrimonial cu:
Baie proprie
Dressing generos
Terasă privată de aproape 30 mp cu vedere către mare
Zona de zi se deschide natural către terasă și grădină, oferind o continuitate perfectă între interior și exterior.
Spații exterioare – Bucurați-vă de stilul de viață mediteranean
Parcelă de până la 460 mp
Grădină amenajată și zone pavate
Terasă generoasă
Solarium panoramic pe acoperiș — ideal pentru relaxare, zonă lounge sau momente memorabile cu priveliște către mare și munte
Puncte de apă și electricitate în grădină
Un spațiu creat pentru a trăi în aer liber aproape tot anul.
Specificații Tehnice & Calitate
Structură și fațadă
Structură din beton armat cu rezistență seismică
Fațadă cu mortar monocapă alb și placare cu piatră naturală
Finisaje interioare cu vopsea lavabilă de înaltă calitate
Tâmplărie
Uși interioare albe, înălțime 2,5 m
Dulapuri încorporate complet finisate
Tâmplărie exterioară aluminiu negru cu rupere punte termică
Geam dublu tip Climalit
Jaluzele electrice în dormitoare
Ușă principală de securitate
Bucătărie & băi
Bucătărie modernă cu insulă și blat din cuarț
Mobilier complet inclus
Paravane de duș instalate
Obiecte sanitare suspendate (Roca sau similar)
Baterii moderne (Ramón Soler sau similar)
Instalații & eficiență energetică
Grad ridicat de electrificare
Încălzire prin pardoseală electrică în toată locuința
Iluminat LED
Videointerfon
Prize TV și telefon în toate camerele
Sisteme eficiente de contribuție energetică
De ce Green & Blue?
✔ Design contemporan
✔ Loturi generoase și intimitate
✔ Calitate premium a construcției
✔ Apropiere de mare și facilități
✔ Investiție solidă într-un stil de viață mediteranean autentic
Aceasta nu este doar o vilă. Este un stil de viață.
Trăiți Mediterana așa cum ați visat mereu.
Contactați echipa CaseSpania pentru disponibilitate actualizată, planuri și o prezentare personalizată.
Specificatii
Curent
Apa
Canalizare
CATV
Fibra optica
Sistem irigatie
Incalzire pardoseala
Aer conditionat
Ferestre Termopan
Usa intrare Metal
Dressing
WC Serviciu
Bucatarie Mobilata
Nemobilat
Interfon
Curte
Gradina
Piscina exterioara
Ovidiu Pasare
+34665054008
Esti interesat de aceasta proprietate ?