




























Townhouse premium pe plajă în El Rosario, Marbella Est
Marbella
995.000€
Suprafata construita
163 mp
Dormitoare
4
An constructie
1980
- ID:P983
- Nr. camere:6
- Nr. dormitoare:4
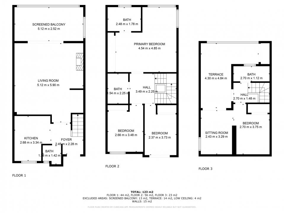
- Suprafata:123.00 mp
- S. terase:45.00 mp
- S. utila totala:168.00 mp
- Nr. bucatarii:1
- Nr. bai:3
- Nr. garaje:1
- An constructie:1980
- An renovare:2024
- Orientare:Sud-Vest
Descriere
Townhouse pe malul mării în El Rosario. 4 dormitoare, grădină privată, vedere la mare, mobilat, piscină, aer condiționat. Viață premium în Marbella.
Puncte cheie
Primă linie la mare – plaja Las Chapas
Orientare Sud–Vest, vedere la mare, grădină și piscină
4 dormitoare, 2 băi + toaletă oaspeți
Grădină privată & acces direct piscină
Mobilat complet, AC, bucătărie parțial utilată
Comunitate închisă,
2 locuri parcare private
Taxe comunitate: 180 €/lună
Gunoi: 70 €/an
IBI: 750 €/an
Această proprietate unică de pe malul mării îmbină perfect eleganța mediteraneană cu confortul modern, într-una dintre cele mai apreciate zone rezidențiale – El Rosario, Marbella Est. Cu orientare Sud–Vest și priveliști superbe către mare, grădină și piscină, townhouse-ul oferă atmosferă luminoasă și apusuri spectaculoase în fiecare zi.
Spațiul de living open-space se continuă natural către terasa privată și grădina îngrijită, creând cadrul ideal pentru momente familiale, outdoor dining și relaxare totală. De aici se accesează direct piscina comunității, perfectă pentru zile însorite și timp petrecut cu cei dragi. Proprietatea este complet mobilată, într-o stare foarte bună, dotată cu aer condiționat și bucătărie parțial utilată — gata de mutat sau pregătită ca investiție pentru închiriere.
Zona El Rosario oferă plaje cu nisip fin, restaurante prestigioase, cluburi de plajă, școli internaționale, supermarketuri și terenuri de golf — toate la distanță de mers pe jos. Aici vei trăi un stil de viață de vacanță permanentă, cu acces rapid către Marbella (10 minute) și Aeroportul Malaga (35 minute).
Ideală pentru viață de familie, refugiu de vacanță sau investiție premium cu randament excelent, această casă reprezintă un stil de viață exclusivist chiar pe coasta Costa del Sol.
De ce să cumperi?
Grădină, piscină, plajă și spații sigure – copilărie în aer liber
Acces rapid la școli internaționale și servicii pentru familii
Locuință complet echipată pentru confort zilnic și timp de calitate împreună
Citeste mai mult
Puncte cheie
Primă linie la mare – plaja Las Chapas
Orientare Sud–Vest, vedere la mare, grădină și piscină
4 dormitoare, 2 băi + toaletă oaspeți
Grădină privată & acces direct piscină
Mobilat complet, AC, bucătărie parțial utilată
Comunitate închisă,
2 locuri parcare private
Taxe comunitate: 180 €/lună
Gunoi: 70 €/an
IBI: 750 €/an
Această proprietate unică de pe malul mării îmbină perfect eleganța mediteraneană cu confortul modern, într-una dintre cele mai apreciate zone rezidențiale – El Rosario, Marbella Est. Cu orientare Sud–Vest și priveliști superbe către mare, grădină și piscină, townhouse-ul oferă atmosferă luminoasă și apusuri spectaculoase în fiecare zi.
Spațiul de living open-space se continuă natural către terasa privată și grădina îngrijită, creând cadrul ideal pentru momente familiale, outdoor dining și relaxare totală. De aici se accesează direct piscina comunității, perfectă pentru zile însorite și timp petrecut cu cei dragi. Proprietatea este complet mobilată, într-o stare foarte bună, dotată cu aer condiționat și bucătărie parțial utilată — gata de mutat sau pregătită ca investiție pentru închiriere.
Zona El Rosario oferă plaje cu nisip fin, restaurante prestigioase, cluburi de plajă, școli internaționale, supermarketuri și terenuri de golf — toate la distanță de mers pe jos. Aici vei trăi un stil de viață de vacanță permanentă, cu acces rapid către Marbella (10 minute) și Aeroportul Malaga (35 minute).
Ideală pentru viață de familie, refugiu de vacanță sau investiție premium cu randament excelent, această casă reprezintă un stil de viață exclusivist chiar pe coasta Costa del Sol.
De ce să cumperi?
Grădină, piscină, plajă și spații sigure – copilărie în aer liber
Acces rapid la școli internaționale și servicii pentru familii
Locuință complet echipată pentru confort zilnic și timp de calitate împreună
Specificatii
Curent
Apa
Canalizare
CATV
Fibra optica
Sistem irigatie
Aer conditionat
Spatiu depozitare
Bucatarie Mobilata
Bucatarie Utilata
Interfon
Curte
Gradina
Piscina exterioara
Ovidiu Pasare
+34665054008
Esti interesat de aceasta proprietate ?